汽車制造
產品概述
product description
查看大圖
HSV-162C 系列伺服驅動單元
伺服驅動該系列為低壓220V雙軸伺服驅動單元,支持脈沖量控制,可適配絕對式編碼器及增量式編碼器。 在上電時通過IO口上傳電機絕對位置,不需要外加通訊線纜。 ? AC220V輸入 ? 雙軸驅動單元 · 通過IO上傳絕對位置 · 支持多摩川絕對式編碼器/增量式編碼器 · 產品型號說明(示例:HSV-162C-030M)
使用說明下載產品特點
FeaturesHSV |
— |
162C |
— |
030 |
M/S |
(1) |
(2) |
(3) |
(4) |
?
序號 |
含義 |
(1) |
華中數控伺服驅動單元 |
(2) |
162C系列驅動 |
(3) |
驅動規格 |
(4) |
M-主模塊; S-從模塊 |
l? 驅動規格及編碼器接口
規格及型號 |
電機編碼器接口 |
支持 全閉環 |
|||
產品系列 |
規格 |
增量式 ① |
絕對式 |
||
多摩川 |
SICK/BISS ? C/海德漢 |
||||
HSV-162C- |
030 |
ü? ? |
ü? ? |
||
①支持2500增量式編碼器;
產品參數
Product parametersl? 驅動規格及基本參數說明
規格 |
額定電流(A) |
最大電流(A) |
|
|
HSV-162C-030M HSV-162-030S |
9.6 |
14.4 |
|
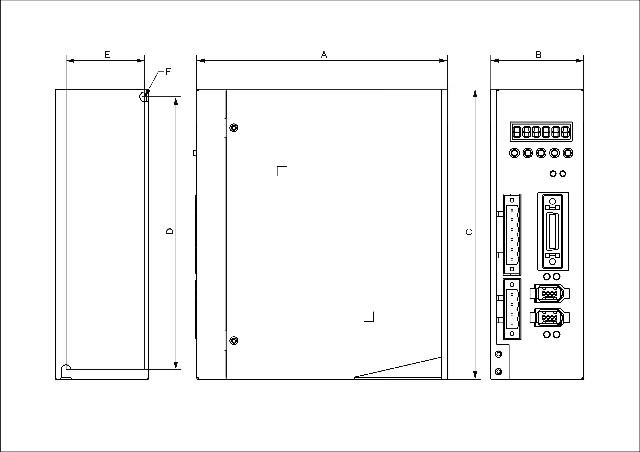
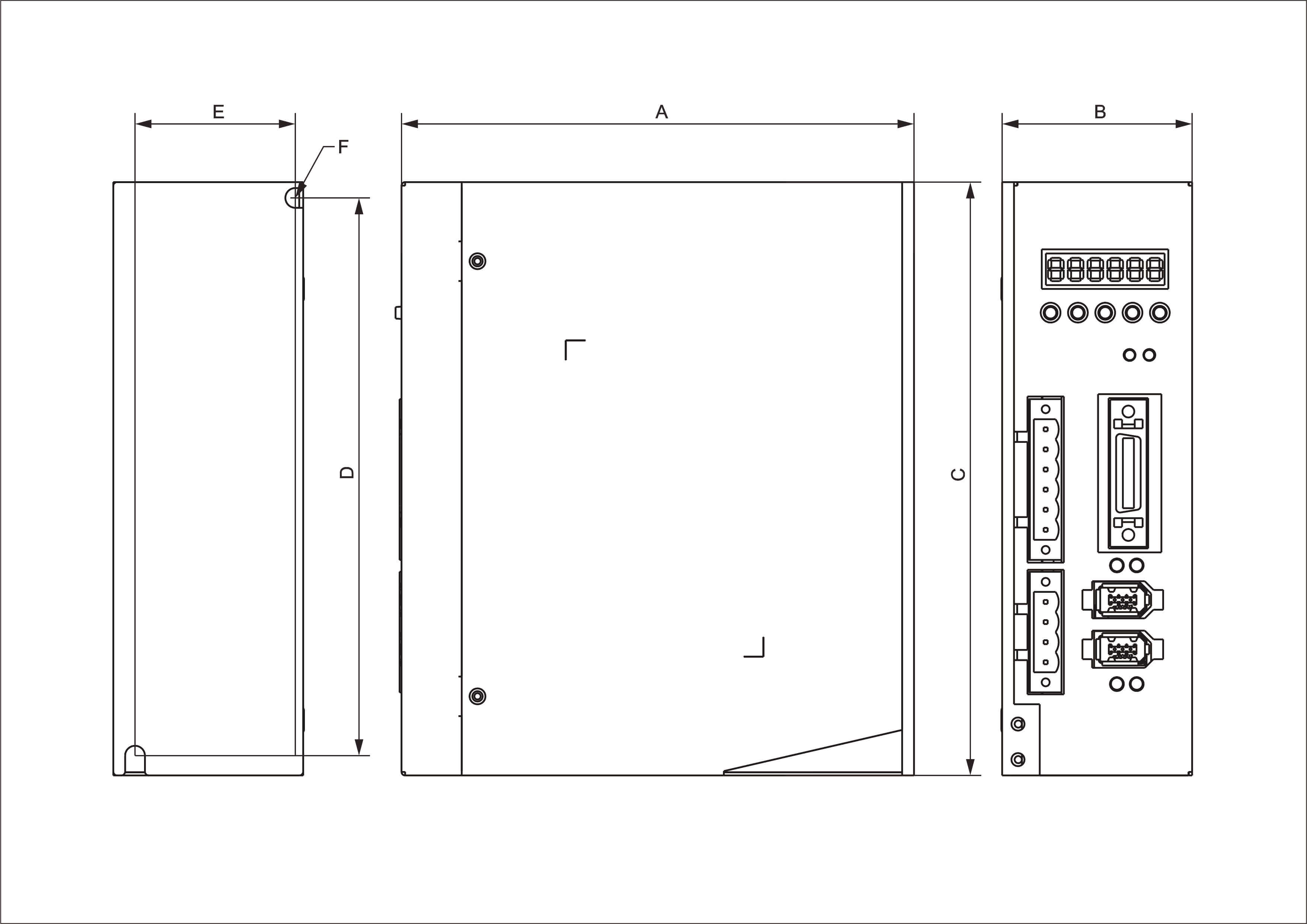
產品尺寸
Product Sizel? 外形及安裝尺寸

![]()
產品型號 |
A |
B |
C |
D |
E |
F |
HSV-162C-030M |
173.5 |
82 |
190 |
178 |
70 |
φ4.6 |

![]()
產品型號 |
A |
B |
C |
D |
E |
F |
HSV-162-030S |
173.5 |
68 |
190 |
180.5 |
58 |
φ5 |
?